|
|
|
|
BaSYS LILA |
|
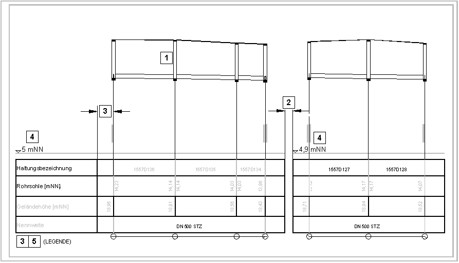
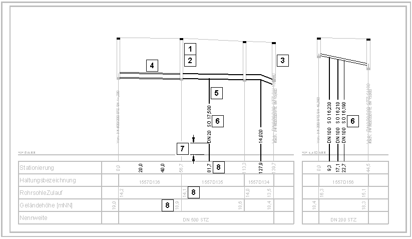
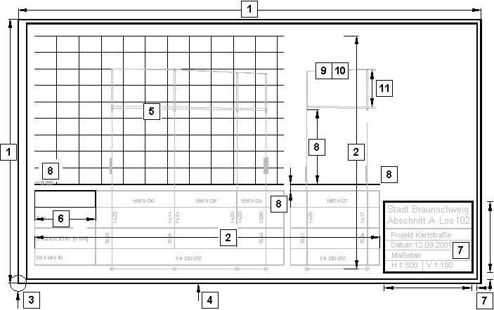
BaSYS LILA ermöglicht die datenbankübergreifende Erstellung beliebiger Längsschnitte für die Stränge der unterirdisch verlaufenden Versorgungsnetze und Kanalnetze in einer einzigen Zeichnung. Dadurch sind verschiedene Projekt- und Planungsdaten visuell miteinander vergleichbar. Je Längsschnitt können mehrere Strangabschnitte und die zugehörige Legende erstellt werden. Leitungen, Knoten, kreuzende Leitungen, Leitungszwischenpunkte (Knickpunkte) und Geländezwischenpunkte werden benutzerdefiniert abgebildet und geplottet. Im Configuration Explorer werden die Längsschnittdefinitionen der Strangabschnitte und die Definitionen der Legende benutzerdefiniert verwaltet. Die Dokumente können sofort zum Plotten genutzt werden. Dadurch besitzen die Längsschnitte ein professionelles und standardisiertes Layout. Aufruf aus Gruppe Grafik der klassischen Barthauer Management Console.
Abschnitte der Hilfe
In der Hilfe werden folgende Abschnitte beschrieben:
|
● |
|
|
|
● |
|
|
|
● |
|
|
|
● |
|
Musterpläne
Den Musterplänen können die Eigenschaften von Legende und Längsschnitt über Verknüpfungen zwischen der Grafik und den zugehörigen Hilfeabschnitten entnommen werden. So wird schnell ein Überblick über die verfügbaren Funktionen möglich:
|
● |
|
|
|
● |
|
|
|
● |
|
|
|
● |
|
|
|
● |
|
Serielle Stränge über aufeinander folgende Strangabschnitte. |
|
● |
|
Parallele Stränge über gestapelte Längsschnitte. |
So geht's
In diesem Abschnitt der Hilfe werden die Arbeitsschritte häufig einzusetzender Arbeitsweisen in groben Zügen beschrieben.
|
● |
|
|
|
● |
|
Layer über den Layermanager anlegen und verwalten. |
|
● |
|
|
|
● |
|
|
|
● |
|
Dokumente im Configuration Explorer
Die Legenden- und Längsschnittdefinitionen werden im Barthauer Configuration Explorer in den Gruppen Legendendefinition und Längsschnittdefinition verwaltet. Details der Funktionalität werden in der Hilfe zum Barthauer Configuration Explorer beschrieben.
Import
So geht's:
Klick mit der rechten Maustaste auf den Ordner Längsschnitt-Legenden-Dokumente beziehungsweise Längsschnitt-Dokumente.
Es öffnet sich das Kontextmenü.
Klick auf den Eintrag Dokumente importieren.
Wahl eines der Verzeichnisse:
...{BaSYS}\config\Updates\DatabaseFiles\Master\LILA\Legends
...{BaSYS}\config\Updates\DatabaseFiles\Master\LILA\LogitudinalSections
Die gewünschte Standarddefinition ist dann importiert.
Export
So geht's:
Klick mit der rechten Maustaste auf das gewünschte Defintionsdokument.
Es öffnet sich das Kontextmenü.
Klick auf den Eintrag exportieren.
Wahl des Zielverzeichnisses.
Die Definitionen sind dann exportiert.
Systemdokumente
Die Systemdokumente können wie folgt sofort für BaSYS LILA genutzt werden:
- Duplizierung in ein Anwenderdokument.
- Transformation einer Vorlage in ein Dokument.
- Direkte Verwendung eines Systemdokuments. In diesem Fall können die Vorgaben der jeweiligen Legenden- und / oder Längsschnittdefinition nicht angepasst werden.
Einstellung des Grafiksystems
Gegenwärtig kann der Längsschnitt über folgende Grafiksysteme ausgegeben werden:
Vor Aufruf der Funktion Längsschnitt zeichnen muss das Grafiksystem in der Synchronizer Konfiguration voreingestellt sein:
Bei fehlender Einstellung wird automatisch ein Formular zur Wahl des Grafiksystems geöffnet. Weitere Details werden in der Hilfe zur Synchronizer Konfiguration beschrieben.
Layermanager
|
|
Zugehöriges Symbol |
Über den Layermanager werden die Layer der Legenden und Längsschnitt verwaltet. Das Formular kann direkt aus der jeweiligen Werkzeugleiste aufgerufen werden.
In diesem Abschnitt der Hilfe werden die Arbeitsschritte häufig einzusetzender Arbeitsweisen in groben Zügen beschrieben.
|
1. |
|
Aufruf des Layermanagers aus einer Werkzeugleiste. |
|
2. |
|
Über diese Funktion können Layer in der Liste ergänzt werden. |
|
|
|
Das Löschen der Layer ist ebenfalls möglich. |
|
3. |
|
Noch nicht durch Speichern übernommene Layer erscheinen in der Layerliste mit dem links gezeigten Symbol. |
|
|
|
Alle bereits vorhandenen Layer sind über dieses Symbol intuitiv identifizierbar. |
|
4. |
Die Layereigenschaften Farbe und Bezeichnung können editiert werden. In einer dritten Zeile wird die Farbe automatisch zum Vergleich in die Definition gemäß RGB umgerechnet. |
|
5. |
|
Nach Abschluss der Überarbeitung sollte das Dokument gespeichert werden. |
|
|
|
Danach werden alle Layer in der Layerliste als vorhanden dargestellt. |
|
6. |
|
Die Layer werden in den Eigenschaften der Legenden und Längsschnitte als Auswahlliste genutzt. |
Benutzeroberfläche
|
Layermanager |
Kopfleiste. |
||||
|
Werkzeugleiste. |
||||
|
Arbeitsbereiche. |
Layerliste
|
Layerliste |
Kopfleiste. |
||
|
{Bezeichnung, Farbname}. |
||
|
Der Layer wird gerade editiert. |
||
|
{Bezeichnung, Farbnummer}. |
Eigenschaften
|
Style |
|
|
|
Farbe |
(Farbpalette) |
|
|
Bezeichnung |
(Bezeichnung des Layers) |
|
|
RGB |
Rot;Gelb;Blau |
Die Eigenschaften werden über die Gruppe Style festgelegt.
Farbe
Bei Klick auf die Auswahlliste öffnet sich ein kleines Formular zur Wahl der Layerfarbe. Die Farbe wird nach ihrer Wahl im Feld visualisiert. In dem Formular kann zwischen den Registern Benutzerdefiniert, Web und AutoCAD gewechselt werden.
Bezeichnung
In das Feld ist ein sinnvoller Text einzugeben.
RGB
In diesem Feld wird die gewählte Farbe in der Konvention RGB (Abkürzung für die Farben rot, grün und blau) ausgegeben. Das Feld ist nicht editierbar.
Legendendesigner
|
|
Zugehöriges Symbol |
Im Legendendesigner werden die Legenden des BaSYS LILA Längsschnitts und die relevanten Grafiklayer erstellt und verwaltet. Die zugehörige Funktionalität befindet sich hauptsächlich in der Menüleiste und in den Eigenschaften.
Die gewählten Einstellungen werden nur dann in den Längsschnitt der Zeichnung übernommen, falls die Legende für den jeweiligen Längsschnitt gewählt ist.
In diesem Abschnitt der Hilfe werden die Arbeitsschritte häufig einzusetzender Arbeitsweisen in groben Zügen beschrieben.
Legendendefinition bearbeiten
So geht's:
|
1. |
|
Über das Symbol Bearbeiten wird das gewünschte Längsschnitt-Legenden-Dokument zum Editieren geöffnet. (Aufruf aus der Werkzeugleiste oder aus dem Kontextmenü) |
|
|
● |
Es können ausschließlich Anwenderdokumente bearbeitet werden. Die Verwendung von Systemdokumenten wird im allgemeinen Abschnitt dieser Hilfe behandelt. |
|
2. |
|
Die Legendenzeilen werden in der Liste angelegt:
|
|
3. |
Die Eigenschaften werden je Legendenzeile bearbeitet. Zur besseren Verständlichkeit der Eigenschaften steht in dieser Hilfe ein Muster der Legende zur Verfügung. |
|
4. |
|
Nach Abschluss der Überarbeitung sollte das Dokument gespeichert werden. |
Benutzeroberfläche
Der Legendendesigner wird aus der Gruppe Legendendefinition des Configuration Explorers per rechter Maustaste oder über die Werkzeugleiste aufgerufen.
|
Legendendesigner |
Kopfleiste. |
|||||||||
|
Menü- und Werkzeugleiste. |
|||||||||
|
Arbeitsbereiche. |
Menü- und Werkzeugleiste
Die hier beschriebenen Menüpunkte und Werkzeuge stehen zur Verfügung. Die Ziffer links neben der Verknüpfung zurück führt zum Muster der Legende.
Über die Beschriftungsposition wird die Ausrichtung der Einträge in der Positionsliste der Legende festgelegt. Folgende Einträge stehen zur Verfügung:
- Linker Rand (linksbündige Ausrichtung)
- Rechter Rand (rechtsbündige Ausrichtung)
Fachbereich
Folgende Fachbereiche können über das Menü eingestellt werden:
- Abwasser
- Wasser
- Gas
Über den Fachbereich werden bestimmte Attribute wie Datenbankzugriff, Objektdarstellung und Autotexte beeinflusst.
Weitere Werkzeuge
|
● |
|
Speichern des Arbeitsstandes. |
|
|
● |
|
Aufruf des Layermanagers. |
Legendenzeile
|
Legendenzeile |
Kopfleiste. |
|||||
|
Werkzeugleiste. |
|||||
|
Stationierungsobjekt. |
|||||
|
Knotenbezeichnung. |
|||||
|
Leitungsbezeichnung und Leitungslänge. |
Werkzeugleiste
Folgende Werkzeuge können zur Verwaltung der Legendenzeilen genutzt werden:
|
● |
![]() |
Eine neue Legendenzeile anlegen. |
|
|
● |
|
Die gewählte Legendenzeile löschen. |
|
|
● |
|
Die gewählte Legendenzeile eine Position nach oben verschieben. |
|
|
● |
|
Die gewählte Legendenzeile eine Position nach unten verschieben. |
Eigenschaften
In diesem Abschnitt der Hilfe werden die Eigenschaften der Legende beschrieben.
|
|
|
|
|
|
|
|
Muster der Legende
|
|
Zugehöriges Symbol |
Im Muster der Legende sind die definierbaren Eigenschaften dargestellt. Verknüpfungen führen von den Skizzenziffern in die zugehörigen Abschnitte der Hilfe.
Über diese Eigenschaften der Legende wird definiert, auf welche Daten der Datenbank die jeweilige Legendenzeile zugreifen soll.
|
Datenherkunft |
|
|
|
Station/Knoten/Leitung |
|
|
|
(Ausdruckseditor) |
|
|
|
(Ausdruckseditor) |
|
|
|
Ja/Nein |
Die Ziffern links neben der Verknüpfung zurück führen zum Muster der Legende.
Für jede Legendenzeile muss ein Ausdruck definiert oder über die Auswahlliste zugeordnet werden. Über den Ausdruck werden die Daten der Legendenzeile generiert.
Ausdruckseditor
|
|
Zugehöriges Symbol |
Bei Klick in das Feld Ausdruck oder Zweiter Ausdruck wird das gezeigte Symbol sichtbar. Über das Symbol wird der Ausdruckseditor (siehe zugehörige Hilfe) geöffnet. Der erzeugte Ausdruck ist danach im Feld Ausdruck oder Zweiter Ausdruck gespeichert.
Wichtige Hinweise:
Vor Öffnen des Ausdruckseditors sind folgende Optionen zu prüfen:
-
Über die Menüleiste gewählter Fachbereich
-
Über das Feld Status gewählte Datenart
Je OPath-Ausdruck werden die Werte der jeweiligen Legendenzeile generiert.
Ausgeblendete Legendeneinträge:
Die Textfreistellungen fehlender Werte werden über den OPath _hidden (für Text) bzw. -999999999 (für Zahlen) aktiviert. Bei ausgeblendeten Werten ist die Spaltenbreite trotzdem über den Umrandungsdurchmesser definiert:
-
'__hidden' Textwerte werden in der Legendenzeile unterdrückt
-
-999999999 Zahlenwerte werden in der Legendenzeile unterdrückt
Für Legendenzeilen mit den Datenarten Leitung, Knoten und Station kann gewählt werden, ob zwei benachbarte gleiche Werte nur einmal oder doppelt dargestellt werden sollen.
Wahlmöglichkeiten
Folgende Wahlmöglichkeiten stehen zur Verfügung:
|
● |
Ja |
Gleiche Werte werden nur einmal angezeigt. |
|
● |
Nein |
Gleiche Werte werden doppelt angezeigt. |
Beispiele
Im Folgenden sind kurze Anwendungsbeispiele aufgeführt:
-
Die Höhe der Zu- und Ablaufsohle eines Schachts ist gleich. Bei Wahl von Nein wird sowohl die Höhe der Zulaufsohle als auch die Höhe der Ablaufsohle in der Legendenzeile ausgegeben. Bei Wahl von Ja erfolgt ausschließlich die Ausgabe der Zulaufsohlhöhe.
-
Mehrere aufeinanderfolgende Leitungen besitzen den selben Durchmesser. Bei Wahl von Nein wird die Nennweite für jede Leitung ausgegeben. Bei Wahl von Ja erfolgt die Ausgabe ausschließlich für jede erste Leitung mit einer abweichenden Nennweite.
-
Für die automatische Textfreistellung wird die Einstellung 'Nein' empfohlen, gleiche Werte werden dann doppelt angezeigt.
Für jede Legendenzeile ist die Datenart festzulegen. Die Festlegung erfolgt über die Auswahlliste zum Feld Status.
Verfügbare Datenarten
Folgende Datenarten stehen in der Auswahlliste zur Verfügung:
-
Leitung: Alle in Abhängigkeit von der Fachschale verfügbaren Leitungsobjekte.
-
Knoten: Alle in Abhängigkeit von der Fachschale verfügbaren Knotenobjekte.
-
Station: Stationierung von beispielsweise Geländezwischenpunkten. Die Einheit kann hier in Meter (m) oder Kilometer (km) angegeben werden.
-
Benutzerdefiniert: Es können weitere benutzerspezifische Datenherkünfte definiert werden (z.B. Gelände- oder Leitungszwischenpunkte, Segmente)
Auswirkung auf die verfügbaren Ausdrücke
Zusammen mit dem gewählten Fachbereich filtert die Datenart auf die verfügbaren OPaths des Ausdruckseditors.
Über diese Gruppe der Legendeneigenschaften werden für die Legende vor allem Optionen der Sichtbarkeit und der Linienattribute definiert.
|
Optionen |
|
|
|
Ja/Nein |
|
|
|
Ja/Nein |
|
|
|
Ja/Nein |
|
|
|
mm |
|
|
|
Ja/Nein |
|
|
|
Ja/Nein |
|
|
|
mm |
|
|
|
||
|
|
(Auswahlliste) |
|
|
|
mm |
|
|
|
mm |
|
|
|
Auswahlliste |
Die Ziffern links neben der Verknüpfung zurück führen zum Muster der Legende.
Sichtbar J/N |
Folgende Optionen können für die Sichtbarkeit gewählt werden:
|
● |
Ja |
Die Legendenzeile wird im Längsschnitt ausgegeben. |
|
● |
Nein |
Die Legendenzeile wird im Längsschnitt nicht ausgegeben. |
Tipp
Schalten Sie Legendenzeilen, die für ein bestimmtes Projekt nicht benötigt werden, auf unsichtbar. So gehen die zugehörigen Optionen nicht verloren. Die Legendenzeile kann bei Bedarf wieder eingeblendet werden.
Immer einzeln J/N |
|
Punktobjekte können entweder als Einzelelemente (beispielsweise sinnvoll für Anschlusspunkte) oder durch Linien verbunden (beispielsweise sinnvoll für Gelände- oder Hydraulikpunkte) dargestellt werden. Folgende Optionen können für die Ausgabe der Grafikobjekte gewählt werden:
|
● |
Ja |
Die Objekte werden als Einzelelemente dargestellt. Gleichartige Elemente werden nicht durch Linien verbunden. |
|
● |
Nein |
Zwischen gleichartigen Elementen werden Verbindungslinien gezogen. Die Option Verbindungslinie muss gleichzeitig gesetzt sein. |
Trennungslinien können die Einträge benachbarter Legendenzeilen-Felder voneinander optisch abgrenzen. Folgende Optionen sind einstellbar:
|
● |
Ja |
Die Trennungslinien zwischen den Zellen der Legendenzeile werden gezeichnet. |
|
● |
Nein |
Die Trennungslinien werden nicht gezeichnet. |
Die Stärke der Trennungslinie wird in Millimeter definiert. Bei Eingabe von 0 wird die Linie nicht ausgegeben.
Verbindungslinie J/N |
Folgende Optionen können gewählt werden:
|
● |
Ja |
Zwischen gleichartigen Elementen werden Verbindungslinien gezogen. Die Option immer einzeln darf nicht gesetzt sein. |
|
● |
Nein |
Zwischen gleichartigen Elementen werden keine Verbindungslinien gezogen. |
Folgende Optionen können gewählt werden:
|
● |
Ja |
Die Fläche unterhalb der Verbindungslinie wird gemäß der zugewiesenen Layereinstellung farblich hinterlegt. |
|
● |
Nein |
Die Fläche unterhalb der Verbindungslinie wird nicht farblich hinterlegt. |
Die Stärke der Verbindungslinie wird in Millimeter definiert. Bei Eingabe von 0 wird die Linie nicht ausgegeben.
Nach Auswahl des Layers werden dessen Attribute direkt und / oder in einer Liste dargestellt. Über die eingebundene Auswahlliste wird den Verbindungslinien ein Layer zugewiesen.
Bei Klick auf <v> öffnet sich die Liste mit den Attributen des Blattspiegels.
Bei Klick auf <-> ist die Liste wieder verborgen.
Bei aktivem <v> wird der Listeninhalt rechts neben dem Feld Linienabstand angezeigt.
1. Definition der Layer über den Layermanager.
2. Wahl des Layers über die Auswahlliste.
3. Die Layereigenschaften Farbe, Bezeichnung und RGB werden dann nach dem Öffnen des Knotens <+> sichtbar.
Überschreibemodus |
Folgende Optionen können für konkurrierende Beschriftung gewählt werden:
|
● |
Einzeilig |
Konkurrierende Beschriftung überlappt sich. |
|
● |
Zweizeilig |
Konkurrierende Beschriftung wird zweizeilig gestaffelt. |
Umrandungsdurchmesser [mm] |
Für alle Legendenzeilen ist derselbe Wert > 0 vorzugeben. Dieser Wert muss so groß bemessen sein, wie für die größten Texte oder Symbole einer Legendenzeile erforderlich.
Höhe Textfahnen [mm] |
Für Textfreistellungen wird hier die Höhe der Textfahnen gleichbedeutend mit der y-Länge ihrer Linie eingestellt.
Folgende Werte sind möglich:
|
● |
> 0 |
Die Textfahnen und die automatische Textfreistellung sind eingeschaltet. |
|
● |
= 0 |
Nur die automatische Textfreistellung ist eingeschaltet. |
|
● |
< 0 |
Die Textfahnen und die automatische Textfreistellung sind ausgeschaltet. |
Modus Textfahnen |
Die Option „Modus der Textfahnen“ umfasst drei mögliche Einstellungen:
|
● |
Automatisch |
Nicht freigestellte Texte sind ohne Textfahnen. Die Linien verlaufen (meist geneigt) bis zur Station der Armatur auf dem oberen und unteren Rahmen der betreffenden Legendenzeile. |
Skizze: AutomatischSkizze: Automatisch
|
|
● |
Immer senkrecht |
Es werden immer senkrechte Linien vom Text bis zum oberen und unteren Legendenrahmen gezeichnet. |
Skizze: Immer senkrechtSkizze: Immer senkrecht
|
|
● |
Unten senkrecht |
Die Textfahnen werden immer gezeichnet. Bei Textfreistellung verläuft die Linie (meist geneigt) bis zur Station des Knotens am oberen Textrahmen. Eine weitere Linie verläuft senkrecht bis zum unteren Rahmen. |
Skizze: Unten senkrechtSkizze: Unten senkrecht
|
Stil |
Über diese Gruppe der Legendeneigenschaften werden die Schrift- und Linienstile der Legende definiert.
|
Stil |
|
|
|
(Bezeichnung der Zeile) |
|
|
|
mm |
|
|
|
mm |
|
|
|
mm |
|
|
|
(Zahlen- bzw. Textformat) |
|
|
|
(Auswahlliste) |
|
|
|
Die Ziffern links neben der Verknüpfung zurück führen zum Muster der Legende.
Die Bezeichnung des Legendentextes wird je Zeile des Legendenspiegels über den Langtext eingegeben.
Größe [mm] |
Die Schriftgröße des Legendentextes in Millimeter wird je Zeile des Legendenspiegels über die Größe festgelegt. Hierbei handelt es sich ausschließlich um die Schriftgröße im Legendenspiegel.
Die Eigenschaften der Feldtexte werden über andere Style-Attribute definiert.
Feldschriftgröße [mm] |
Die Schriftgröße in Millimeter ist festzulegen. Die Schriftgröße kann von derjenigen im Legendenspiegel abweichen. Bei Eintrag von 0 werden die Texte in der Zeichnung nicht dargestellt.
Linienabstand [mm] |
Die Höhe der jeweiligen Legendenzeile wird über den Linienabstand definiert.
Format |
Das Format des Zeileninhalts kann für Zahlen oder Texte formatiert werden (z.B. Zahlenformat: #0.00)
Ausrichtung (Auswahlliste) |
Die Ausrichtung des Feldtextes der jeweiligen Legendenzeile kann über folgende Einträge der Auswahlliste festgelegt werden:
|
● |
Horizontal |
Waagerechte Ausrichtung des Legendenzeilen-Feldtextes im Längsschnitt.
|
|
● |
Links vertikal |
Senkrechte Ausrichtung des Legendenzeilen-Feldtextes im Längsschnitt.
|
|
● |
Rechts vertikal |
Senkrechte Ausrichtung des Legendenzeilen-Feldtextes im Längsschnitt.
|
|
● |
Zentriert vertikal |
Senkrechte Ausrichtung des Legendenzeilen-Feldtextes im Längsschnitt.
|
Layer (Auswahlliste) |
Über die eingebundene Auswahlliste wird der Legendenzeile ein Layer zugewiesen.
Bei Klick auf <+> öffnet sich die Liste mit den Attributen des Blattspiegels.
Bei Klick auf <-> ist die Liste wieder verborgen.
Bei aktivem <+> wird der Listeninhalt rechts neben dem Feld Linienabstand angezeigt.
1. Definition der Layer über den Layermanager.
2. Wahl des Layers über die Auswahlliste.
3. Die Layereigenschaften Farbe, Bezeichnung und RGB werden dann nach dem Öffnen des Knotens <+> sichtbar.
Längsschnittdesigner
|
|
Zugehöriges Symbol |
Über den Längsschnittdesigner wird der Gesamtentwurf des Plotdokuments verwaltet.
In diesem Abschnitt der Hilfe werden die Arbeitsschritte häufig einzusetzender Arbeitsweisen in groben Zügen beschrieben.
Längsschnittdefinition bearbeiten
Das Längsschnittdokument wird aus der Gruppe Längsschnittdefinition des Configuration Explorers per Werkzeugleiste oder rechter Maustaste aufgerufen.
So geht's:
|
1. |
|
Über dieses Symbol wird das gewünschte Längsschnittdokument zum Editieren geöffnet. |
|
|
● |
Es können ausschließlich Anwenderdokumente bearbeitet werden. Die Verwendung von Systemdokumenten wird im allgemeinen Abschnitt dieser Hilfe behandelt. |
|
2. |
|
Die Zeichnungen, Längsschnitte und Stränge werden gegebenenfalls kontrolliert, überarbeitet oder über die Funktionen der Werkzeugleiste beziehungsweise des Kontextmenüs neu angelegt. Die weiter unten ausgeführten Hinweise zur Definition paralleler (beispielsweise Kanal im Trennsystem oder parallel zu einer Wasserleitung) oder serieller Leitungsstränge sollten bei der Bearbeitung beachtet werden. |
|
3. |
|
Für alle angelegten Längsschnittobjekte werden automatisch Standard-Eigenschaften vorgegeben, die bei Bedarf angepasst werden können. Zu den Objekten (Zeichnung, Längsschnitt, Strangabschnitt) befinden sich weiter unten Musterpläne zur Verdeutlichung der editierbaren Eigenschaften. Von dort führen Verknüpfungen zu den gewünschten Elementen weiter. |
|
4. |
|
Nach Abschluss der Überarbeitung sollte das Dokument gespeichert werden. |
Legende einbinden
In jeden Längsschnitt der Zeichnung muss eine Legende eingebunden sein.
So geht's:
|
1. |
|
Auf den Längsschnitt-Knoten klicken. |
|
2. |
|
Die Eigenschaften des Längsschnitts können dann bearbeitet werden. |
|
3. |
|
Per Klick in das Feld Bezeichnung der Gruppe Legende wird die Schaltfläche zur Zuordnung der Legendendefinition sichtbar. Über die Schaltfläche werden die Legendendokumente des Configuration Explorers sichtbar. |
|
4. |
|
Das Dokument wird über das Kontextmenü oder die Werkzeugleiste auf aktuell gesetzt. Danach ist die Legende dem Längsschnitt zugeordnet. |
|
5. |
|
Nach Abschluss der Überarbeitung sollte das Dokument gespeichert werden. |
Plot erstellen
Der Plot kann auch direkt ohne vorherige Bearbeitung der Dokumente erstellt werden.
So geht's:
|
1. |
|
Über dieses Symbol wird die Längsschnittkonfiguration direkt im Configuration Explorer oder aus dem Längsschnittdokument geöffnet. |
|
2. |
|
Im geöffneten Formular befindet sich eine Werkzeugleiste, aus der die Erstellung des Plots aufgerufen wird. |
Weitere Details stehen im Abschnitt zu BaSYS-LILA.
Parallele Leitungsstränge definieren
Die Skizze zeigt zwei parallele Leitungsstränge in einem Trennsystem:

Die Darstellung der parallelen Leitungsstränge erfordert gestapelte Längsschnitte. Die Definition geschieht über folgende Einstellungen:
-
Der Zeichnung werden im Längsschnittdesigner 2 Längsschnitte zugeordnet
-
Dadurch werden die Längsschnitte automatisch gestapelt, also mit Bezug auf die Projektionsrichtung übereinander gelegt.
-
Die zugehörigen Legenden werden untereinander angeordnet.
Verknüpfungen führen von den Skizzenziffern der gestapelten Längsschnitte in die zugehörigen Abschnitte der Hilfe.

Serielle Leitungsstränge definieren
Die Skizze zeigt serielle Leitungsstränge in Form von 2 aufeinander folgenden Strangabschnitten:

Die Darstellung der parallelen Leitungsstränge erfordert serielle Strangabschnitte. Die Definition geschieht über folgende Einstellungen:
-
Der Zeichnung werden im Längsschnittdesigner 2 Strangabschnitte zugeordnet.
-
Dadurch folgen die Strangabschnitte automatisch seriell aufeinander.
-
Jedem Strangabschnitt kann eine andere Bezugshöhe zugewiesen werden.
Verknüpfungen führen von den Skizzenziffern der seriellen Strangabschnitte in die zugehörigen Abschnitte der Hilfe.

Benutzeroberfläche
In diesem Abschnitt der Hilfe ist der Aufbau der Benutzeroberfläche grob schematisch dargestellt. Von dort führen Verknüpfungen zu den relevanten Abschnitten der Hilfe weiter.
|
Längsschnittdesigner |
Kopfleiste. |
|||||||
|
Werkzeugleiste. |
|||||||
|
Arbeitsbereiche. |
Dokumentdefinition
Der Längsschnittdesigner gliedert die Längsschnittdefinition in die Hierarchieebenen Dokument - Zeichnung - Längsschnitt - Strang.
|
Dokument-Definition |
Kopfleiste. |
|||||||||
|
Werkzeugleiste. |
|||||||||
|
Bezeichnung des Längsschnittdokuments. |
|||||||||
|
Zeichnung mit Eigenschaften. |
|||||||||
|
Längsschnitt mit Eigenschaften. |
|||||||||
|
Gewählter Strangabschnitt mit Eigenschaften. |
|||||||||
|
Weiterer Strangabschnitt. |
|||||||||
|
Weiterer Längsschnitt. |
Werkzeuge
Folgende Funktionen können zur Verwaltung der Längsschnitt-Definitionen genutzt werden:
|
● |
|
Neue Zeichnung |
Bei Betätigung der Schaltfläche wird unterhalb des angeklickten Dokuments oder der angeklickten Zeichnung eine neue Zeichnung eingefügt. |
|
● |
|
Neuer Längsschnitt |
Bei Betätigung der Schaltfläche wird unterhalb der angeklickten Zeichnung ein neuer Längsschnitt eingefügt. |
|
● |
|
Neuer Strangabschnitt |
Bei Betätigung der Schaltfläche wird unterhalb des angeklickten Längsschnitts ein neuer Strangabschnitt eingefügt. |
|
● |
|
Definition kopieren |
Kopieren einer Definition, beispielsweise eines Leitungsstrangs. |
|
● |
|
Hierarchisch kopieren |
Kopieren einer Definition mit allen untergeordneten Definitionen, beispielsweise eines Längsschnitts mit seinen Strangabschnitten. Diese Schaltfläche ist für Strangabschnitte nicht aktiv. |
|
● |
|
Einfügen |
Einfügen des gesamten kopierten Inhalts aus der Zwischenablage. |
|
● |
|
Definition löschen |
Die gewählte Definition, beispielsweise eine Zeichnung, wird gelöscht. Vorsicht! Alle untergeordneten Definitionen gehen mit verloren! |
|
● |
|
Umbenennen |
Umbenennung der Definition. |
|
● |
|
Speichern |
Das Dokument wird für BaSYS LILA gespeichert. |
|
● |
|
Konfiguration starten |
Aufruf der Längsschnitterstellung. Es öffnet sich das Formular zur Längsschnittkonfiguration. |
|
● |
|
Layermanager |
Aufruf des Layermanagers. |
|
● |
DXF |
DXF-Datei erstellen |
Der Längsschnitt wird in eine DXF-Datei exportiert. |
|
● |
|
Referenzdateien (DWG/DXF) als Quelle für Textpositionen definieren |
Über Referenz-Dateien (DWG/DXF) können evtl. manuell nachbearbeitete Textpositionen aus schon erstellten Längsschnitt-Dokumenten in neue Längsschnitte übernommen werden. |
Eigenschaften
In diesem Abschnitt der Hilfe werden die Eigenschaften der Zeichnung, des Längsschnitts und des Strangabschnitts beschrieben.
Muster der Zeichnung
|
|
Zugehöriges Symbol |
Im Muster der Zeichnung sind die definierbaren Eigenschaften dargestellt. Verknüpfungen führen von den Skizzenziffern in
die zugehörigen Abschnitte der Hilfe.
Attribute der Zeichnung
Die Zeichnungen werden im Längsschnitteditor verwaltet.
|
|
|
|
|
|
|
|
|
|
|
|
|
|
In dieser Gruppe werden die allgemeinen Eigenschaften der Zeichnung verwaltet.
|
Allgemeines |
|
|
|
Bezeichnung |
(Textfeld) |
Bezeichnung
In dieses Feld ist die Bezeichnung der Zeichnung einzutragen.
Die Basislinie ist die Bezugslinie der angezeigten Höhen.
|
Basislinie |
|
|
|
Ja/Nein |
|
|
|
m |
|
|
|
Ja/Nein |
|
|
|
mm |
|
|
|
(Text der Maßeinheit) |
|
|
|
mm |
|
|
|
mm |
|
|
|
Layer |
|
|
|
Ja/Nein |
|
|
|
Projektionsachse |
|
Die Ziffern links neben der Verknüpfung zurück führen zum Muster der Zeichnung. Diese Attribute werden weiterhin aus folgenden Skizzen aufgerufen:
-
Ziffer 04 auf dem Muster des Längsschnitts.
-
Ziffer 03 auf dem Muster gestapelter Längsschnitte.
-
Ziffer 04 auf dem Muster serieller Strangabschnitte.
Abstand zum tiefsten Knoten [mm] |
Abstand der Basislinie von der tiefsten Unterkante eines Knotens in Millimeter.
Folgende Optionen können gewählt werden:
|
● |
Ja |
Die Höhe der Basislinie wird automatisch berechnet. |
|
● |
Nein |
Die Höhe der Basislinie ist manuell einzugeben. |
Linienstärke der Basislinie in Millimeter.
Einheit für die Darstellung der Bezugshöhe der Basislinie. Statt "m NN" kann beispielsweise "m Adria" definiert werden.
Für denLängsschnitt wird das in der Projektvariante eingestellte Höhenbezugssystem verwendet. Sollte dort kein Höhenbezugssystem eingestellt sein, wird standardmäßig [mNN] als Einheit verwendet.
Folgende Optionen können gewählt werden:
|
● |
Ja |
Es werden nur Höhen der Basislinie ohne Nachkommastellen akzeptiert (wie 126 m NN). |
|
● |
Nein |
Basislinien mit beliebigen Nachkommastellen werden akzeptiert (wie 126,27 m NN). |
Höhe der Basislinie oberhalb eines Bezugspunktes. Die Einheit des Bezugspunktes wird über Einheit (Text) definiert.
Über "Leitungslänge aus Koordinaten" ist definierbar, ob bei einer zum Knoten-Referenzpunkt verlaufenden Leitungslinie die Darstellungslänge im Längsschnitt automatisch angepasst werden soll.
Abstand der obersten Legendenzeile von der Basislinie in Millimeter.
Blattschnitt der Zeichnung. Der Rahmen der Zeichnung befindet sich innerhalb des Blattschnitts. Die Eigenschaften des Rahmens werden separat definiert.
|
Blatt |
|
|
|
(Auswahlliste) |
|
|
|
Ja/Nein;mm;mm;mm;mm |
|
|
|
mm |
|
|
|
mm |
|
|
|
mm |
|
|
|
Legendenlayer |
|
|
|
-;- |
|
|
|
m |
|
|
|
mm;mm |
|
|
|
Ja/Nein;mm |
Die Ziffern links neben der Verknüpfung zurück führen zum Muster der Zeichnung.
Auswahlliste für ein DIN A - Blattformat oder ein selbst definiertes Format.
Falls eine von den DIN A - Blattformaten abweichende Höhe und / oder Breite eingegeben wird, ändert sich der Inhalt des Feldes Blatt automatisch auf Benutzerdefiniert.
Positionierung und Breite des Blattspiegels können definiert werden.
Bei Klick auf <+> öffnet sich die Liste mit den Attributen des Blattspiegels.
Bei Klick auf <-> ist die Liste wieder verborgen.
Bei aktivem <+> wird der Listeninhalt rechts neben dem Feld Blattspiegel angezeigt.
Blattspiegelposition X [mm]
Waagerechter Abstand der rechten Seite des Blattspiegels vom rechten Rand des Zeichnungsrahmens in Millimeter.
Blattspiegelposition Y [mm]
Senkrechter Abstand der Unterseite des Blattspiegels vom unteren Zeichnungsrand in Millimeter.
Blattspiegelbreite [mm]
Breite des Blattspiegels in Millimeter.
Blattspiegelhöhe [mm]
Höhe des Blattspiegels in Millimeter.
Breite des Zeichenblatts in Millimeter.
Bei Wahl eines DIN A - Blattformats wird die Breite automatisch eingetragen.
Höhe des Zeichenblatts in Millimeter.
Bei Wahl eines DIN A - Blattformats wird die Höhe automatisch eingetragen.
Über diese Option wird die Breite des Legendenspiegels definiert. Die Einheit der Werte ist Millimeter.
Der Maßstab wird für die Horizontale und die Vertikale separat eingestellt.
-
Bei Klick auf <+> öffnet sich die Liste mit den Attributen des Blattspiegels.
-
Bei Klick auf <-> ist die Liste wieder verborgen.
-
Bei aktivem <+> wird der Listeninhalt rechts neben dem Feld Maßstab angezeigt.
Horizontal (Auswahlliste)
Maßstab für die horizontalen Abstände der in die Zeichnung eingebundenen Längsschnitte. Der Maßstab wird über eine Auswahlliste zugewiesen.
Vertikal (Auswahlliste)
Maßstab für die vertikalen Abstände der in die Zeichnung eingebundenen Längsschnitte. Der Maßstab wird über eine Auswahlliste zugewiesen.
Hinweis
Die verwendeten Maßstäbe sind im Blattspiegel zu beschreiben.
In der Längsschnittzeichnung werden alle Schächte und Bauwerke, an denen die vorgegebene Mindestüberdeckung unterschritten wird, durch ein Symbol hervorgehoben.
Die Mindestüberdeckung kann nur geprüft werden, wenn an der jeweiligen Station Geländezwischenpunkte oder Deckelmittelpunkte vorhanden ist.
Die Mindestüberdeckung ergibt sich dann aus der Differenz zwischen Geländehöhe oder Deckelmittelpunkt und dem Rohrscheitel.
Die Positionierung der Zeichnung auf dem Blatt wird über die X- und Y-Koordinate des Einfügepunkts (linke untere Ecke der Zeichnung) definiert.
-
Bei Klick auf <+> öffnet sich die Liste mit den Attributen des Blattspiegels.
-
Bei Klick auf <-> ist die Liste wieder verborgen.
-
Bei aktivem <+> wird der Listeninhalt rechts neben dem Feld Position angezeigt.
Bezugspunkt für die Koordinate des Einfügepunkts ist die linke untere Blattecke.
Horizontal [mm]
X-Koordinate des Einfügepunktes in Millimeter.
Vertikal [mm]
Y-Koordinate des Einfügepunktes in Millimeter.
Die Rahmendarstellung kann optional ausgeschaltet werden. Die Linienstärke ist einstellbar.
-
Bei Klick auf <+> öffnet sich die Liste mit den Attributen des Blattspiegels.
-
Bei Klick auf <-> ist die Liste wieder verborgen.
-
Bei aktivem <+> wird der Listeninhalt rechts neben dem Feld Rahmen angezeigt.
Rahmen anzeigen J/N
Folgende Optionen können gewählt werden:
|
● |
Ja |
Der Zeichnungsrahmen ist sichtbar. |
|
● |
Nein |
Der Zeichnungsrahmen ist nicht sichtbar. |
Rahmen-Breite [mm]
Linienstärke des Rahmens in Millimeter.
An dieser Stelle wird definiert, ob die Objekte in der Zeichnung dargestellt werden sollen oder nicht.
Mögliche Optionen
Die detaillierten Optionen der Darstellung werden im Formular Strangabschnitt gewählt. Die Anschlüsse werden aber nur dann in der Zeichnung ausgegeben, falls deren Darstellung im Formular Zeichnung auf Ja gestellt ist. Folgende Optionen können gewählt werden:
|
● |
Ja |
Das Objekt wird in den Längsschnitten der Zeichnung dargestellt. |
|
● |
Nein |
Das Objekt wird in den Längsschnitten der Zeichnung nicht dargestellt. |
|
Darstellung |
|
|
|
Ja/Nein |
|
|
|
Ja/Nein |
|
|
|
Ja/Nein |
|
|
|
Ja/Nein |
|
|
|
Ja/Nein |
|
|
|
Ja/Nein |
|
|
|
Ja/Nein |
|
|
|
Ja/Nein |
Die Ziffern links neben der Verknüpfung zurück führen zum Muster der Zeichnung.
Folgende Optionen können gewählt werden:
|
● |
Ja |
Die Anschlüsse werden in den Längsschnitten der Zeichnung visualisiert. |
|
● |
Nein |
Die Anschlüsse werden in den Längsschnitten der Zeichnung nicht visualisiert. |
Darstellungszweck
Bei gewählter Darstellung können beispielsweise die Anschlüsse von Regenwasserabläufen, Hausanschlussleitungen und Indirekteinleitern kontrolliert werden.
Folgende Optionen können gewählt werden:
|
● |
Ja |
Die Anschlussknoten werden in den Längsschnitten der Zeichnung visualisiert. |
|
● |
Nein |
Die Anschlussknoten werden in den Längsschnitten der Zeichnung nicht visualisiert. |
Darstellungszweck
Die Darstellung der Anschlussknoten kann beispielsweise zur Überprüfung der Armaturaufmessung genutzt werden.
Wichtiger Hinweis
Diese Option betrifft nur auf die Fachschalen Gas und Wasser.
Folgende Optionen können gewählt werden:
|
● |
Ja |
Die Attributsegmente werden in den Längsschnitten der Zeichnung visualisiert. |
|
● |
Nein |
Die Attributsegmente werden in den Längsschnitten der Zeichnung nicht visualisiert. |
Darstellungszweck
Die Darstellung der Attributsegmente kann für alle Leitungen genutzt werden, in denen Attribute wie Material oder Baujahr abschnittsweise voneinander abweichen.
Wichtiger Hinweis
Diese Option steht nur bei einer Freischaltung der EVN Module zur Verfügung.
Folgende Optionen können gewählt werden:
|
● |
Ja |
Die Geländezwischenpunkte werden in den Längsschnitten der Zeichnung visualisiert. |
|
● |
Nein |
Die Geländezwischenpunkte werden in den Längsschnitten der Zeichnung nicht visualisiert. |
Darstellungszweck
Über Geländezwischenpunkte werden alle von der geraden Verbindungslinie zwischen zwei Deckelmittelpunkten abweichenden Strukturen des Geländes dargestellt. Dazu gehören beispielsweise Gräben.
Folgende Optionen können gewählt werden:
|
● |
Ja |
Die kreuzenden Leitungen werden in den Längsschnitten der Zeichnung visualisiert. |
|
● |
Nein |
Die kreuzenden Leitungen werden in den Längsschnitten der Zeichnung nicht visualisiert. |
Darstellungszweck
Kreuzende Leitungen sollten generell angezeigt werden. So werden im jeweiligen Längsschnitt Konflikte mit folgenden Leitungen schnell ersichtlich:
-
Fremdmedien wie Strom, Telefon, Fernwärme
-
Kreuzende Anschlussleitungen
-
Kreuzende Regenwasser-, Schmutzwasser- und / oder Mischwasserhaltungen in Trenn- und Kombisystemen
-
Kreuzende Gas- und Wasserleitungen
Folgende Optionen können gewählt werden:
|
● |
Ja |
Die Leitungspunkte werden in den Längsschnitten der Zeichnung visualisiert. |
|
● |
Nein |
Die Leitungspunkte werden in den Längsschnitten der Zeichnung nicht visualisiert. |
Darstellungszweck
Die Leitungspunkte beschreiben den detaillierten Verlauf einer Leitung zwischen zwei Knoten. Leitungspunkte sollten im Abwasserbereich für die Darstellung von Druck- und Vakuumleitungen, in den Fachschalen Gas und Wasser generell angezeigt werden.
Folgende Optionen können gewählt werden:
|
● |
Ja |
Die Sonderpunkte werden in den Längsschnitten der Zeichnung visualisiert. |
|
● |
Nein |
Die Sonderpunkte werden in den Längsschnitten der Zeichnung nicht visualisiert. |
Darstellungszweck
Über Sonderpunkte können alle Bezugspunkte angezeigt werden, die für die jeweilige Fachschale relevant sind. Hierzu gehören beispielsweise Referenzierung von Anschlussleitungen über Gebäudepunkte.
Folgende Optionen können gewählt werden:
|
● |
Ja |
Die Zu- und Abläufe der Schächte und Bauwerke werden in der Längsschnittansicht oberhalb der Legende und in der Netzansicht visualisiert. |
|
● |
Nein |
Die Zu- und Abläufe der Schächte und Bauwerke werden nicht visualisiert. |
Darstellungszweck
Die Darstellung der Zu- und Abläufe von Schächten und Bauwerken ist für die technisch-hydraulische Kontrolle der Freigefällekanalisation sehr wichtig.
Wichtiger Hinweis
Diese Option betrifft nur auf die Fachschale Abwasser.
Die Darstellung der Zu- und Abläufe kann zusätzlich je Längsschnitt variiert werden.
Die Zeichnung kann bei Bedarf ein beliebiges Linienraster erhalten.
|
Raster |
|
|
|
Layer |
|
|
|
m;m |
|
|
|
Ja/Nein |
|
|
|
Ja/Nein |
|
|
|
mm |
|
|
|
mm |
Die Ziffern links neben der Verknüpfung zurück führen zum Muster der Zeichnung.
Der Linienabstand wird für getrennt für die Breite und Höhe der Rastermaschen gewählt.
-
Bei Klick auf <+> öffnet sich die Liste mit den Attributen des Blattspiegels.
-
Bei Klick auf <-> ist die Liste wieder verborgen.
-
Bei aktivem <+> wird der Listeninhalt rechts neben dem Feld Linienabstand angezeigt.
Horizontal [m]
Breite der Rastermaschen. Die Darstellung der Breite hängt vom Horizontalmaßstab ab.
Vertikal [m]
Höhe der Rastermaschen. Die Darstellung der Höhe hängt vom Vertikalmaßstab ab.
Folgende Optionen können gewählt werden:
|
● |
Ja |
Es wird ein Hilfsraster wird gezeichnet. |
|
● |
Nein |
Es wird kein Hilfsraster wird gezeichnet. |
Folgende Optionen können gewählt werden:
|
● |
Ja |
Auf jeder horizontale Rasterlinie wird die Geländehöhe in der Zeichnung ausgegeben. |
|
● |
Nein |
Die Geländehöhe wird auf den Rasterlinien nicht angezeigt. |
Linienstärke der horizontalen und vertikalen Rasterlinien in Millimeter.
Schriftgröße der Rastertexte in Millimeter.
Muster des Längsschnitts
|
|
Zugehöriges Symbol |
Im Muster des Längsschnitts sind die definierbaren Eigenschaften dargestellt. Verknüpfungen führen von den Skizzenziffern in die zugehörigen Abschnitte der Hilfe.

Attribute des Längsschnitts
Die Längsschnitte werden als Elemente der Zeichnung verwaltet.
|
|
|
|
|
|
|
|
|
|
|
In dieser Gruppe werden die allgemeinen Eigenschaften des Längsschnitts verwaltet.
|
Allgemeines |
|
|
|
(Textfeld) |
|
|
|
(Auswahlliste) |
In dieses Feld ist die Bezeichnung des Längsschnitts einzutragen.
Folgende Fachbereiche können aus der Auswahlliste gewählt werden:
-
Abwasser
-
Wasser
-
Gas
Über den Fachbereich werden bestimmte Attribute wie Datenbankzugriff, Objektdarstellung und Autotexte beeinflusst.
Die detaillierten Optionen der Darstellung werden im Formular Strangabschnitt gewählt. Die Schächte werden aber nur dann in der Zeichnung ausgegeben, falls deren Darstellung im Formular Längsschnitt auf Ja gestellt ist.
|
Darstellung |
|
|
|
Ja/Nein |
|
|
|
Ja/Nein |
|
|
|
Standardmäßig ist die explizite Symbolbezeichnung wie z.B. ‚Flansch‘ im OPath zu verwenden. |
|
|
|
Darstellungsbreite des jeweiligen Symbols. |
|
|
|
Darstellungshöhe des jeweiligen Symbols. |
Die Ziffer links neben der Verknüpfung zurück führt zum Muster des Längsschnitts.
Die Darstellung der Zu- und Abläufe von Schächten und Bauwerken ist für die technisch-hydraulische Kontrolle der Freigefällekanalisation sehr wichtig.
Folgende Optionen können gewählt werden:
|
● |
Ja |
Die Schächte und Bauwerke werden visualisiert. |
|
● |
Nein |
Die Schächte und Bauwerke werden nicht visualisiert. |
Richtungspfeil darstellen
Der Fließpfeil wird mit dieser Option ein bzw. ausgeblendet. Diese Option betrifft nur die Fachschale Abwasser.
Ausdruck Knotensymbol
Die Symboldarstellung wird über die Eigenschaft „Ausdruck Knotensymbol“ zentral gesteuert. Folgende Darstellungsregeln zum Layout der Knotensymbole sind über den erstellten OPath Ausdruck möglich:
|
Generelle Symbolik |
Symbolik des Knotens und der senkrechten Linie |
||
|
● Explizite Symbolbezeichnung |
● |
- z.B. 'Flansch' |
Bei Vorgabe der expliziten Bezeichnung wird das zugehörige Symbol im Längsschnitt visualisiert. |
|
● 'Ohne' |
● |
- Kein Symbol |
Statt des Symbols wird im Längsschnitt eine senkrechte Linie gezeichnet. |
|
● 'Unsichtbar' |
● |
- Nichts |
Weder das Symbol noch die senkrechte Linie werden gezeichnet. |
|
● 'Unbekannt' |
● |
- Fragezeichen |
Statt des Symbols wird im Längsschnitt ein Fragezeichen gezeichnet. |
Senkrechte Verbindungslinien
Die senkrechten Verbindungslinien von der Legende bis zur Geländeoberkante werden in drei Abschnitte aufgeteilt:
|
● 'L1' |
● |
Unten |
Abschnitt vom Legendenrahmen bis zur Basislinie der Zeichnung. |
|
● 'L2' |
● |
Mitte |
Abschnitt von der Basislinie bis zur Rohrunterkante. |
|
● 'L3' |
● |
Oben |
Abschnitt von der Rohroberkante bis zum Gelände. |
OPath-Beispiele:
Die genannten Abschnitte können über den OPath bei Bedarf einzeln ausgeblendet werden.
Im folgenden werden einige Beispiele für die OPath-Logik aufgeführt:
|
● |
'Flansch' |
Die Rohrverbindung wird als Flansch dargestellt. |
|
● |
'Flansch, L1, L3' |
Flansch mit senkrechter Linie ohne die Abschnitte L1 und L3. Der Abschnitt L2 zwischen Basislinie und Rohrunterkante wird gezeichnet. Die Abschnitte L1 vom Legendenrahmen zur Basislinie sowie L3 von der Rohroberkante zur Geländelinie entfallen. |
|
● |
'Ohne, L1, L3' |
Senkrechte Linie ohne die Abschnitte L1 und L3. |
|
● |
'Unbekannt, L1, L3' |
Fragezeichen mit senkrechter Linie ohne die Abschnitte L1 und L3. |
|
● |
'Unsichtbar, L1, L3' |
Die Abschnitte L1 und L3 der senkrechten Linie werden gezeichnet! |
|
● |
'Unsichtbar, L2' |
Der Abschnitt L2 zwischen Basislinie und Rohrunterkante wird gezeichnet. Die Abschnitte L1 vom Legendenrahmen zur Basislinie sowie L3 von der Rohroberkante zur Geländelinie entfallen. |
Ausdruck Knotensymbolbreite
Der OPath zu dieser Eigenschaft definiert die Darstellungsbreite des jeweiligen Symbols. Die Darstellungsart selber wird über die Eigenschaft „Ausdruck Knotensymbol“ vorgegeben. Der integrierte OPath stimmt mit dem für die Symbolhöhe erstellten überein.
Hinweis: Für einige Armaturen wird ausschließlich die Knotensymbolhöhe genutzt.
Ausdruck Knotensymbolhöhe
Der OPath zu dieser Eigenschaft definiert die Darstellungshöhe des jeweiligen Symbols. Reale Rohrverbindungen sollten auf eine Ausdehnung über die gesamte Rohrhöhe, andere Armaturen auf eine feste Höhe skaliert werden.
Legende |
Für jeden Längsschnitt einer Zeichnung kann die Darstellung der Legende separat eingestellt werden:
- Auswahl der Legende für den jeweiligen Längsschnitt
- Darstellungsform der Legende im Längsschnitt
|
Legende |
|
|
|
--- |
|
|
|
mm |
|
|
|
mm |
Die Ziffern links neben der Verknüpfung zurück führen zum Muster des Längsschnitts. (G) bezieht sich auf das Muster der gestapelten Längsschnitte.
Über dieses Feld wird definiert, welche Legendendefinition für den Längsschnitt gelten soll. Hier ist unbedingt eine Legendendefinition für die Darstellung im Längsschnitt auszuwählen.
Wahl der Legendendefinition
So geht's:
1. Klick in das Feld Bezeichnung.
2. Die Schaltfläche
zur Wahl der Legendendefinition wird sichtbar. Ein Klick auf die Schaltfläche öffnet den BCE mit den LILA Legendendefinitionen.
3. Per Klick mit der rechten Maustaste auf die gewünschte Legende wird das Kontextmenü geöffnet.
4. Die Zuweisung der Legende erfolgt über den Eintrag Dokument übernehmen.
Über das Feld wird der Abstand des ersten Schachtes beziehungsweise Knotens (Fachschalen Gas und Wasser) vom rechten Rand des Legendenspiegels definiert. Der Abstand wird in Millimeter angegeben, ist also Maßstabs-unabhängig.
Legende (Linienbreite) [mm] |
01(G) |
Stärke der Legendenlinien in Millimeter.
Über die weiteren Optionen wird der Abstand der Strangabschnitte und die automatische Verschiebung sich verdeckender Objekte definiert.
|
Weitere Optionen |
|
|
|
mm |
|
|
|
m |
|
|
|
Ja / Nein |
|
|
|
mm |
|
|
|
mm |
Die Ziffer links neben der Verknüpfung zurück führt zum Muster des Längsschnitts.
-
(G) bezieht sich auf das Muster der gestapelten Längsschnitte.
-
(S) bezieht sich auf das Muster der seriellen Strangabschnitte.
Über die Option wird festgelegt, welchen waagerechten Abstand benachbarte Strangabschnitte besitzen sollen. Der Abstand wird in Millimeter definiert.
Durch die Eingabe der Verschiebung in Meter können parallele Längsschnitte in ihrer Darstellung gegeneinander versetzt werden.
Veranlassung
Parallele Leitungen gibt es beispielsweise in gemeinsam genutzten Leitungsgräben und / oder in den Trennsystemen der Abwasserableitung.
Falls die genannten Leitungen innerhalb einer Zeichnung in parallel projizierten Längsschnitten dargestellt werden, kann es zur gegenseitigen Verdeckung der Leitungen kommen.
Die Eingabe der Verschiebung in Meter legt die horizontale Staffelung der Längsschnitte fest. Dadurch kann die gegenseitige Verdeckung umgangen werden.
Maßstabsabhängigkeit des Abstands
Die Verschiebung wird in Meter angegeben und bezieht sich nicht auf die "Knoten-Mitte", sondern auf den "Knoten-Rand links". Damit erfolgt die automatische Staffelung der Längsschnitte nicht fest, sondern relativ zum Horizontalmaßstab.
Abschnitte automatisch aufteilen [Ja/Nein] |
|
Ist die Option mit 'Ja' eingestellt wird der Abstand zwischen den benachbarten Srangabschnitten automatisch ermittelt.
Abstand zwischen 2 autom. Abschnitten [mm] |
03(S) |
Über die Option wird festgelegt, welchen waagerechten Abstand benachbarte automatisch aufgeteilte Strangabschnitte besitzen sollen. Der Abstand wird in Millimeter definiert.
Höhe Textfahnen [mm] |
|
Durch den an dieser Stelle vergebenen Wert wird generell eingestellt, welche Option für den Zeichnungsbereich definiert ist.
Bei Verwendung von Textfreistellungen wird hier die Höhe der Textfahne gleichbedeutend mit der y-Länge ihrer Linie eingestellt.
Folgende Werte sind möglich:
-
> 0 Alles Automatisch: Die Textfahnen und die automatische Textfreistellung sind eingeschaltet
-
= 0 Textfreistellung: Nur die automatische Textfreistellung ist eingeschaltet
-
< 0 Ohne Automatik: Die Textfahnen und die automatische Textfreistellung sind ausgeschaltet.
Muster des Strangabschnitts
|
|
Zugehöriges Symbol |
Im Muster des Strangabschnitts sind die definierbaren Eigenschaften dargestellt. Verknüpfungen führen von den Skizzenziffern in die zugehörigen Abschnitte der Hilfe.

Attribute des Strangabschnitts
Die Strangabschnitte werden als Elemente des Längsschnitts verwaltet. Die generelle Einstellung, ob das jeweilige Objekt im Strangabschnitt dargestellt wird oder nicht, befindet sich in der Zeichnung.
|
|
|
|
|
|
|
|
In dieser Gruppe werden die allgemeinen Eigenschaften des Strangabschnitts verwaltet.
|
Allgemeines |
|
|
|
Bezeichnung |
(Textfeld) |
Bezeichnung
In dieses Feld ist die Bezeichnung des Strangabschnitts einzutragen.
Die Verknüpfungen führen zu den Details weiter.
|
Rohrdarstellung |
|
|
|
m |
|
|
|
Definition über Opath -Ausdruck |
|
|
|
||
|
|
=> Hilfe zu den Layern. |
|
|
|
(Auswahlliste) |
Die Ziffern links neben der Verknüpfung zurück führen zum Muster des Strangabschnitts.
Die Anfangsstation kann für jeden Strangabschnitt neu gewählt werden. Die Eingabe erfolgt in Meter. Bei fehlender Eingabe beginnt die Stationierung standardmäßig mit dem Wert 0.
Die Angabe einer vom Wert 0 abweichenden Anfangsstation kann beispielsweise dann sinnvoll sein, wenn die Stationierung aus dem vorhergehenden Strangabschnitt übernommen werden soll.
Die Darstellungsrichtung (bei nur einer Leitung im Strangabschnitt) ist über einen OPath-Ausdruck definierbar.
So geht's:
1. Per Klick auf den Auswahlbutton wird der Ausdruckseditor geöffnet.
2. Eingabe des Opath-Ausdruckes für die Darstellungsrichtung einer einzelnen Leitung (True/1 = in Fließrichtung, False/ 0 = Gegen Fließrichtung)
z.B. Kanalart LIKE ('D%') - dieser Opath-Ausdruck stellt Druckrohrleitungen in Fließrichtung, alle anderen Kanalarten gegen die Fließrichtung dar.
Über die Layer können Leitungen und / oder Knoten benutzerdefinierte Farben zugewiesen werden.
1. Definition der Layer über den Layermanager.
2. Wahl des Layers über die Auswahlliste.
3. Die Layereigenschaften Farbe, Bezeichnung und RGB werden dann nach dem Öffnen des Knotens <+> sichtbar.
Die Darstellung der Leitungsrohre kann über folgende Optionen definiert werden:
|
● |
Aus |
Die Leitungen werden im aktuellen Strangabschnitt nicht dargestellt. |
|
● |
Einfach |
Die Leitungen werden im aktuellen Strangabschnitt mit einer einfachen Linie der Rohrwandung dargestellt. |
|
● |
Doppelt |
Die Leitungen werden im aktuellen Strangabschnitt mit einer Linie für die Rohrinnenseite und einer weiteren Linie für die Rohraußenseite dargestellt. |
Die Verknüpfungen führen zu den Details weiter.
|
Geöffnete Gruppe. |
||||||||||||||||||
|
Letzter Knoten. |
||||||||||||||||||
|
|||||||||||||||||||
|
Vertikalabstand. |
|||||||||||||||||||
|
Objekteigenschaften von links: 1. Objekt darstellen 2. Station darstellen 3. Linie darstellen 4. Text / Höhe darstellen 5. Linienbreite [mm] 6. OPath-Audruck |
||||||||||||||||||
|
Texthöhe. |
||||||||||||||||||
|
Die Ziffern links neben der Verknüpfung zurück führen zum Muster des Strangabschnitts. (S) bezieht sich auf das Muster der seriellen Strangabschnitte.
Folgende Optionen können gewählt werden:
|
● |
Ja |
Der letzte Knoten (in Stationierungsrichtung) des Strangabschnitts wird gezeichnet. |
|
● |
Nein |
Der letzte Knoten (in Stationierungsrichtung) des Strangabschnitts wird nicht gezeichnet. |
Objekteigenschaften
Die Eigenschaften der gewünschten Objekte, beispielsweise Leitungspunkte, werden über die zugehörigen Symbole ein- oder ausgeblendet. Die Objekteigenschaften werden nur dann in der Zeichnung wirksam, wenn deren Darstellung im übergeordneten Element des Längsschnittdesigners auf Ja gestellt ist:
-
Für Knoten in den Eigenschaften des Längsschnitts.
-
Für die anderen Objekte in den Eigenschaften der Zeichnung.
Die Darstellung der Linien, Linien-Layer und Stationen wird für Zu- und Abläufe logischerweise nicht unterstützt. In der Skizze sind die Objekteigenschaften der Anschlüsse dargestellt.
|
|
||||||||||||||||||||
|
|
||||||||||||||||||||
|
|
||||||||||||||||||||
|
|
||||||||||||||||||||
|
|
||||||||||||||||||||
|
|
Folgende Optionen können gewählt werden:
|
● |
Ja |
Das Objekt wird im Strangabschnitt dargestellt. |
|
● |
Nein |
Das Objekt wird im Strangabschnitt nicht dargestellt. |
Folgende Optionen können gewählt werden:
|
● |
Ja |
Das Vertikallinie zur Legende wird für das gewählte Objekt im Strangabschnitt dargestellt. |
|
● |
Nein |
Das Vertikallinie zur Legende wird für das gewählte Objekt nicht im Strangabschnitt dargestellt. |
Für Geländezwischenpunkte sollte die Option auf "Nein" gesetzt werden. Bei "Ja" führt von jedem Geländepunkt eine senkrechte Linie nach unten und macht dadurch die Zeichnung sehr unübersichtlich.
Die Linienstärke des Objekts (beispielsweise kreuzende Leitung) wird an dieser Stelle für den Strangabschnitt in Millimeter definiert.
Über dieses Feld wird die Objektbezeichnung per OPath definiert, bzw. welcher OPath für das Objekt mit dem jeweiligen Objekttyp (wie Anschlüsse) gelten soll.
Definition und Zuweisung des OPaths
|
|
Zugehöriges Symbol |
Bei Klick in das Feld OPath wird die Schaltfläche zum Öffnen des Ausdruckseditors (siehe zugehörige Hilfe) sichtbar. Darüber wird der Ausdruckseditor gestartet. Das Ergebnis der Bearbeitung wird nach Schließen des Editors im Feld OPath angezeigt.
Folgende Optionen können gewählt werden:
|
● |
Ja |
Die Stationswerte werden für das gewählte Objekt in der Legende zum Strangabschnitt dargestellt. |
|
● |
Nein |
Die Stationswerte werden für das gewählte Objekt nicht in der Legende zum Strangabschnitt dargestellt. |
Folgende Optionen können gewählt werden:
|
● |
Ja |
Die Höhen-Werte (wie Sohlhöhe) werden für das gewählte Objekt in der Legende zum Strangabschnitt dargestellt. |
|
● |
Nein |
Die Höhen-Werte (wie Sohlhöhe) werden für das gewählte Objekt nicht in der Legende zum Strangabschnitt dargestellt. |
Folgende Optionen können gewählt werden:
|
● |
Ja |
Die Texte werden für das gewählte Objekt in der Legende zum Strangabschnitt horizontal dargestellt. |
|
● |
Nein |
Die Texte werden für das gewählte Objekt in der Legende zum Strangabschnitt vertikal dargestellt. |
Ausdruck Textausrichtung |
Die Textausrichtung von z.B. Kreuzenden Leitungen und Sonderpunkten wird über den Ausdruck Textausrichtung festgelegt.
Für die Textausrichtung gibt es folgende Möglichkeiten:
|
Ausdruck Textausrichtung |
Beschreibung |
|
Text oberhalb der Basislinie |
|
|
'Standard' |
Oberhalb der Basislinie neben der senkrechten Linie. |
|
‚AboveBaseline‘ |
Oberhalb der Basislinie mit senkrechter Linie bis zum Text. |
|
‚TryAboveBaseline‘ |
Bei genügend Platz oberhalb der Basislinie. Sonst oberhalb der Geländelinie. |
|
Text unterhalb der Rohrleitung oder kreuzenden Leitung |
|
|
‚BelowObject‘ |
Unterhalb des am tiefsten liegenden Objektes mit senkrechter Linie bis zum Text. |
|
‚TryBelowObject' |
Bei genügend Platz unterhalb des am tiefsten liegenden Objektes. Sonst oberhalb der Geländelinie. |
|
Text oberhalb der Geländelinie |
|
|
‚AboveTerrain‘ |
Oberhalb der Geländelinie mit senkrechter Linie bis zum Text. |
Die Texte werden zusätzlich automatisch freigestellt (wenn nicht über „Höhe Textfahnen“ anders definiert).
Falls für die Textausrichtung ‚Standard‘ oder ein nicht aufgeführter Wert vergeben ist, wird der Text nicht bei der automatischen Freistellung berücksichtigt.
Ausdruck Linientyp |
|
Kreuzende Leitungen:
Wichtige Hinweise zur OPath-Definition:
-
Eine kreuzende Leitung mit 1 Geo-Linie auf die Leitung wird standardmäßig wie bisher gezeichnet. Die Textaurichtung kann oberhalb oder unterhalb der Geländelinie definiert werden.
-
Eine kreuzende Leitung mit mindestens 2 Geo-Linien auf ein oder mehrere Segmente der Leitung wird als parallele Leitung gezeichnet. Skizze:Parallele LeitungSkizze:Parallele Leitung

-
Jede parallele Leitung ist als Zementhalbschale der Leitung definierbar.
-
Jede Geo-Linie einer parallelen Leitung ist als Armatur (Hydrant oder Froschklappe) definierbar.
-
Jede Geo-Linie einer parallelen Leitung (speziell Kabel) ist als Muffe definierbar; die wiederum einen speziellen Linientyp erhalten kann.
Parallele Kabel und ihre Muffen:
Es gelten folgende Regeln:
-
Der OPath greift auf ein sinnvolles Feld der Geo-Linie zwischen parallelem Kabel und Leitung zu. Das kann eine selbstdefinierte Eigenschaft sein.
-
Die Muffe erhält den Status ‚ConnectedNode‘ oder ‚UnconnectedNode‘ über den relevanten OPath .
-
Die Muffe übernimmt mit Ausnahme von ‚Fill‘ standardmäßig die Linienart des parallelen Kabels.
-
Die Muffe ist kreisförmig; mit fest auf die eineinhalbfache Nennweite des Kabels konfiguriertem Durchmesser.
Die relevanten Optionen von „Ausdruck Linientyp“ lauten:
|
Ausdruck Linientyp |
Beschreibung |
|
‚ConnectedNode‘ (gebundene Muffe) |
Die Muffe ist fest an den Verlauf des parallelen Kabels gebunden. |
|
‚UnconnectedNode‘ (freie Muffe) |
Die Muffe ist nicht an der Verlauf des parallelen Kabels gebunden, kann also unabhängig davon in einer anderen Höhe visualisiert werden. |
|
‚Solid‘, ‚Dash‘, ‚Dot‘, ‚DashDot‘, ‚DashDotDot‘ |
Durchgezogene, gestrichelte, gepunktete, Strichpunkt oder Strichpunktpunktlinie. Die Option ist für die parallele Leitung und/oder die Muffen per OPath definierbar. |
|
‚Fill‘ |
|
|
Kombination ‚{Linientyp 1} | {Linientyp 2}‘ |
Die Kombination ‚{Linientyp 1} | {Linientyp 2}‘ ist auf Muffen beschränkt, um ihre Symbolik per OPath zu gestalten; beispielsweise über folgende Ausdrücke: |
Zementhalbschalen der Leitungen
Folgende Option vom „Ausdruck Linientyp“ transformiert eine parallele Leitung in eine Zementhalbschale der Leitung. Die Linienart ist nicht durch den OPath zugänglich:
|
Ausdruck Linientyp |
Beschreibung |
|
‚PipeSectionCrest' |
Zementhalbschale. Standardmäßig wird ein gefülltes Rechteck zwischen Achse und Scheitel der Hauptleitung gezeichnet. |
Weitere Armaturen der Parallelen Leitung
Folgende Optionen vom „Ausdruck Linientyp“ machen die Geolinie einer parallelen Leitung zur Armatur. Die Linienart ist nicht durch den OPath zugänglich:
|
Ausdruck Linientyp |
Beschreibung |
|
‚Hydrant‘ |
Der Kreisdurchmesser des Symbols entspricht der Leitungshöhe. |
|
‚FlapGate‘ |
Froschklappe. Die Symbolhöhe entspricht der Leitungshöhe. Das Symbol am Anfang/Ende der parallelen Leitung wird automatisch korrekt ausgerichtet. |
Ausdruck Sonderpunkttyp (Sonderpunkte) |
|
Der OPath kann neben ‚Standard‘ auch folgende neu eingeführte Sonderpunkttypen definieren:
Liste der Symbole für SonderpunkteListe der Symbole für Sonderpunkte

|
Ausdruck Sonderpunkttyp |
Beschreibung |
|
‚Text' |
Es wird kein Symbol sondern ausschließlich die Bezeichnung ausgegeben. Der Text wird gemäß „Weitere Optionen / Objektart / Ausdruck Textausrichtung“ platziert und freigestellt. |
|
‚Marker‘ |
Standardmäßig wird ein Merkpfahl als kleines hochkant stehendes Rechteck mit einer zentrierten Linie bis zum Gelände visualisiert. Die Größe des Merkpfahls wird über die Breite und Höhe des Referenzknotens eingestellt. |
|
‚Patch‘ |
Standardmäßig wird auf dem referenzierten Segment der Hauptleitung ein quadratischer Flicken mit deren halber Nennweite als Seitenlänge visualisiert. |
|
‚Box‘ |
Beliebiges Rechteck. Die Dimensionen und die geodätische Unterkante des Rechtecks müssen individuell definiert werden. Es gibt keine Standardvorgabe. - 'Box | Dash': Rechteck mit gestrichelter Umrandung. - 'Box | Dot': Rechteck mit gepunkteter Umrandung. - ‚Box | DashDot‘: Rechteck mit Strichpunkt-Umrandung. - ‚Box | DashDotDot‘: Rechteck mit Strichpunktpunkt-Umrandung. |
Darstellung von Halbschale , Merkpfahl und Flicken
Halbschale (‚PipeSectionCrest‘), Merkpfahl (‚Marker‘) und Flicken (‚Patch‘) werden standardmäßig dargestellt, wenn folgende Felder leer (NULL) sind:
- Breite des Referenzobjekts (Parallele Leitung oder Sonderpunkt)
- Höhe des Referenzobjekts (Parallele Leitung oder Sonderpunkt)
- Lage der Geo-Linie zwischen Referenzobjekt und dem Segment der Hauptleitung. Die Lage entspricht der geodätischen Höhe.
Bei von NULL abweichenden Werten ändert sich die Darstellung folgendermaßen:
|
|
Halbschale |
Merkpfahl |
Flicken |
|
Breite |
Höhe |
Breite |
Breite |
|
Höhe |
Höhe |
Höhe |
Höhe |
|
Lage |
Unterkante |
Unterkante Rechteck |
Unterkante |
Abstand Label-Basislinie [mm] |
02(S) |
Über das Feld wird festgelegt, wie weit die Unterkante eines Längsschnitt-Textes oberhalb der Basislinie positioniert wird. Einheit dieses vertikalen Abstands ist Millimeter.
Der Abstand Label-Basislinie kann von Strangabschnitt zu Strangabschnitt unterschiedlich definiert werden und ist auch separat für alle Objekttypen (Anschlüsse, Zuläufe, Abläufe...) definierbar.
Je nach Option entspricht der gewählte Wert dem Abstand zwischen Text und:
1. Basislinie
2. Minimalwert aus UK Rohrleitung und UK kreuzende Leitung.
3. Geländelinie
Schriftgröße der auf den Strangabschnitt bezogenen Texte in Millimeter.
Längsschnitterstellung mit BaSYS LILA
|
|
Zugehöriges Symbol |
Sobald im Configuration Explorer passende Legendendokumente und Längsschnittdokumente vorhanden sind, kann mit der Längsschnitterstellung begonnen werden.
In diesem Abschnitt der Hilfe werden die Arbeitsschritte häufig einzusetzender Arbeitsweisen in groben Zügen beschrieben.
Grafiksystem
Bei fehlender Einstellung wird automatisch ein Formular zur Wahl des Grafiksystems geöffnet. Weitere Details werden in der Hilfe zur Synchronizer Konfiguration beschrieben.
Informationen zu den relevanten Grafiksysteme befinden sich im ersten Abschnitt dieser Hilfe.
Dokument bearbeiten
So geht's:
|
1. |
|
Mit dem Start von BaSYS LILA wird automatisch der Configuration Explorer mit Filter auf die Legenden- und Längsschnittdefinitionen geöffnet. |
|
2. |
|
Über dieses Symbol können die gewünschten Dokumente (Legende oder Längsschnitt) zum Editieren geöffnet werden. |
|
|
● |
Es können ausschließlich Anwenderdokumente bearbeitet werden. Die Verwendung von Systemdokumenten wird im allgemeinen Abschnitt dieser Hilfe behandelt. |
|
3. |
|
Nach Abschluss der Überarbeitung sollte das jeweilige Dokument gespeichert werden. |
Leitungsliste bearbeiten
So geht's:
|
1. |
|
Im Configuration Explorer wird das gewünschte Längsschnittdokument über das links gezeigte Symbol von Kontextmenü oder Werkzeugleiste geöffnet. |
|
2. |
|
Die Knoten der Dokument-Definition werden so weit geöffnet, bis die Hierarchieebene der Strangabschnitte erreicht ist. |
|
3. |
|
Der gewünschte Strangabschnitt wird gewählt. |
|
|
|
Der gewählte Strangabschnitt besitzt jetzt das links zu sehende Symbol. |
|
4. |
|
Über dieses Symbol des Kontextmenüs oder der Werkzeugleiste kann das Formular zum Editieren der Leitungsliste geöffnet werden. |
|
|
|
Alternativ ist die Wahl der Leitungen direkt über BaSYS-Plan möglich. Der Planaufbau sollte vorher erfolgt sein. Dort ist dann die erste und letzte Leitung des Strangs zu wählen und über die zugehörige BaSYS-Plan-Funktion zu bestätigen. |
|
|
|
Falls die Leitungsliste schon angelegt ist, kann sie über diese Funktion bearbeitet werden. |
|
|
|
Über diese Funktion kann die Leitungsliste bei Bedarf auch gelöscht werden. |
|
5. |
|
Falls im jetzt geöffneten Leistungslisteneditor eine neue Liste angelegt werden soll, wird dazu das schwarze Einfügesymbol in der Datensatzleiste zur tabellarischen Ansicht genutzt. |
|
6. |
|
Über diese Funktion werden alle Leitungen, die sich in der aktuellen Gemeinde- und Projektvariante befinden, in den oberen Teil der Leitungszuordnung geladen. Der bisher gewählte Strang wird dadurch aus dem unteren Teil gelöscht. |
|
7. |
|
Dann können die gewünschten Leitungen im oberen Teil der Leitungszuordnung markiert und über die links gezeigte Schaltfläche als Strang gewählt werden. |
|
|
|
Alternativ kann der Strang wie weiter oben beschrieben direkt grafisch gewählt werden. |
|
8. |
|
Die gespeicherte Tabelle der Leitungslisten kann unabhängig vom gerade aktiven Längsschnittdokument auch für andere Längsschnittdokumente verwendet werden. |
|
9. |
|
Über diese Funktion werden die Leitungen aus der gewählten Liste in den Strangabschnitt übernommen. |
Einstellung des Grafik-Systems (BaSYS Plan A oder E) per Synchronizer Konfiguration (Separate Hilfe).
Längsschnitt zeichnen
So geht's:
|
1. |
|
Im Configuration Explorer wird das gewünschte Längsschnittdokument über das links gezeigte Symbol von Kontextmenü oder Werkzeugleiste geöffnet. |
|
2. |
|
Bei Bedarf werden für die gewählten Strangabschnitte Leitungen ergänzt (siehe weiter oben). |
|
|
|
Die Leitungen werden dann jeweils über die links dargestellte Funktion übernommen. |
|
3. |
|
Falls die Längsschnittkonfiguration später erneut verwendet wird, muss sie gespeichert werden. |
|
4. |
|
Über die Schaltfläche der Werkzeugleiste wird der Längsschnitt gezeichnet. |
Längsschnittkonfiguration
|
|
Aufruf-Schaltfläche |
Die Längsschnittkonfiguration wird auch über die dargestellte Schaltfläche des Längsschnitteditors geöffnet.
Benutzeroberfläche
In diesem Abschnitt der Hilfe ist der Aufbau der Benutzeroberfläche grob schematisch dargestellt. Von dort führen Verknüpfungen zu den relevanten Abschnitten der Hilfe weiter.
|
LILA Längsschnitt-Engine |
Kopfleiste. |
||||||
|
Werkzeugleiste. |
||||||
|
Arbeitsbereiche. |
Werkzeugleiste
|
● |
|
Speichern |
Speichern des Arbeitsstandes. |
|
● |
|
Zeichnen |
Der Längsschnitt wird gezeichnet. |
|
● |
|
Layermanager |
Aufruf des Layermanagers. |
|
● |
DXF |
DXF-Zeichnung |
Der Explorer wird geöffnet, um eine DXF - Zeichnung zu hinterlegen. |
Dokumentdefinition
|
Dokument-Definition |
Kopfleiste. |
|||||||||||||||||||||
|
Werkzeugleiste. |
|||||||||||||||||||||
|
Hierarchie gemäß Längsschnittdefinition. |
|||||||||||||||||||||
|
Gewählter Strangabschnitt. |
|||||||||||||||||||||
|
Zugeordnete Haltungen. |
|||||||||||||||||||||
|
Weiterer Strangabschnitt. |
Werkzeugleiste
Zwecks Hinzufügen / Löschen / Umbenennen der jeweiligen Leitungsliste ist auf den gewünschten Strangabschnitt zu klicken. Danach werden in der Menüleiste folgende Schaltflächen sichtbar:
|
● |
|
Neue Leitungsliste |
Eine neue Leitungsliste editieren und anschließend zuweisen. |
|
● |
|
Leitungsliste löschen |
Die gewählte Leitungsliste löschen. |
|
● |
|
Leitungsliste editieren |
Die gewählte Leitungsliste editieren. |
|
● |
|
Leitungen zuordnen |
Strang im aktuellen Grafiksystem auswählen. |
Eigenschaften
Die Eigenschaften wurden im Längsschnittdesigner editiert. Weitere Details werden im relevanten Abschnitt dieser Hilfe beschrieben.
Leitungslisten
Die Leitungslisten werden aus der Längsschnittkonfiguration aufgerufen. Dadurch öffnet sich das Definitionsformular.
So geht's
Leitungsliste laden
|
|
Zugehöriges Symbol |
Vor der Bearbeitung des aktuell gesetzten Listeneintrags ist die Leitungsliste zu laden (siehe auch das zugehörige Formular). Dies geschieht über das gezeigte Symbol.
Wichtiger Hinweis
Durch das Laden der Leitungsliste über das oben gezeigte Symbol wird der Inhalt fertig definierter Listeneinträge gelöscht!
Benutzeroberfläche
|
|
Aufruf aus BaSYS LILA oder dem Längsschnittdokument |
In diesem Abschnitt der Hilfe ist der Aufbau der Benutzeroberfläche grob schematisch dargestellt. Von dort führen Verknüpfungen zu den relevanten Abschnitten der Hilfe weiter.
|
Leitungslisteneditor |
Kopfleiste. |
||||
|
Werkzeugleiste. |
||||
|
Arbeitsbereiche. |
Werkzeugleiste
|
● |
|
Speichern |
Speichern des Arbeitsstandes. |
|
● |
|
Neu laden |
Die Leitungsliste wird neu geladen. |
|
● |
|
Übernehmen |
Die Leitungen werden in den Strangabschnitt übernommen. |
Leitungsliste
Die Listeneinträge werden im linken Bereich der Leitungsliste verwaltet (siehe auch das zugehörige Formular). Die Funktionalität kann über die Schaltflächen am Fuß der Leitungsliste genutzt werden:
Navigation zwischen den Datensätzen über die Pfeilflächen
<+> Datensatz anlegen
<-> Datensatz löschen
<▲> Datensatz bearbeiten
<ü> Datensatz speichern
Jeder Datensatz muss nach dessen Erzeugung per <ü> gespeichert werden.
|
Leitungsliste |
Kopfleiste. |
||||
|
Hierarchie gemäß Längsschnittdefinition. |
||||
|
Datensatzleiste. |
Leitungszuordnung
|
Tabellenkopf mit Filter- und Sortierzeile. |
|||||||||
|
Liste der verfügbaren Leitungen. |
|||||||||
|
Objektwahl über Tabelle oder BaSYS-Plan. |
|||||||||
|
Für den Strangabschnitt gewählte Leitungen. |
Objektwahl
Die Leitungen werden im rechten Bereich der Leitungsliste verwaltet (siehe auch das zugehörige Formular). Dort werden die Leitungen des aktuell gesetzten Listeneintrags dargestellt.
Die Verwaltung der Leitungen erfolgt über folgende Schaltflächen:
|
● |
|
In der oberen Liste werden alle Leitungen angezeigt, die gewählt werden können. Per Klick auf das Icon wird die gewählte Leitung in die Liste übernommen. Sobald eine zweite Leitung übernommen wurde, merkt sich der Editor die Navigationsrichtung im Leitungsnetz. Die jeweils nächste Leitung (an Verzweigungen mehrere Leitungen) steht in der oberen Liste zur Auswahl. |
|
● |
|
Löschen der gewählten Leitung aus der unteren Liste. Die gemäß Navigationsrichtung zugehörigen Leitungen werden mit entfernt. Falls nach dem Löschen nur noch eine Leitung gelistet ist, wird mit dem Zuweisen einer neuen Leitung die Navigationsrichtung neu gewählt. |
|
● |
|
Grafische Wahl der Leitungen. Es öffnet sich BaSYS Plan zur Wahl der Objekte. |
|
Impressum der Dokumentation |
|
Stand: |
24.02.2014 |
Verantwortlich: |
Jörg Martin |
|
Copyright: |
Barthauer Software GmbH |
Erreichbarkeit: |
Homepage: www.barthauer.de |

